Guide Price £550,000 - £575,000 Waghorn and Company are delighted to present this truly exceptional executive linked detached family home, ideally positioned within easy reach of highly favoured local schools, excellent bus routes, and the vibrant High Street with its mainline station offering fast and frequent services to London in under 40 minutes. Beautifully presented throughout the property provides generously proportioned family accommodation that is ready to enjoy from day one. Adding to its appeal, the stunning Haysden Country Park is just a short distance away offering scenic walks, open green spaces, and a wonderful outdoor lifestyle on the doorstep. Furthermore, the property offers exciting potential for further extension subject to the relevant consents making this a rare opportunity to secure a quality home in a highly sought-after location.
Guide Price £550,000 - £575,000 Waghorn and Company are delighted to present this truly exceptional executive link detached family home, ideally positioned within easy reach of highly favoured local schools, excellent bus routes, and the vibrant High Street with its mainline station offering fast and frequent services to London in under 40 minutes. Beautifully presented throughout the property provides generously proportioned family accommodation that is ready to enjoy from day one. Adding to its appeal, the stunning Haysden Country Park is just a short distance away offering scenic walks, open green spaces, and a wonderful outdoor lifestyle on the doorstep. Furthermore, the property offers exciting potential for further extension subject to the relevant consents making this a rare opportunity to secure a quality home in a highly sought-after location.
Executive link detached family home beautifully presented throughout, offering well-proportioned accommodation and potential for further extension (subject to consents).
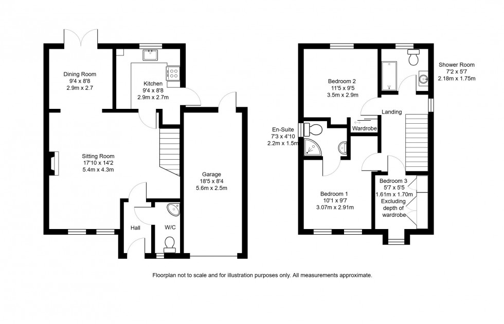
Spacious ground floor layout featuring a welcoming entrance hall, cloakroom, elegant sitting room with feature fireplace, modern kitchen, and dining room with French doors to the garden.
Three well-sized bedrooms, including a principal bedroom with en-suite shower room, plus a stylish family shower room on the first floor.
Attractive tiered rear garden with Indian stone patio areas and lawn, ideal for outdoor entertaining.
Excellent frontage and parking, including driveway, garage access, front lawn, set within a convenient location for schools, transport links, and the High Street.