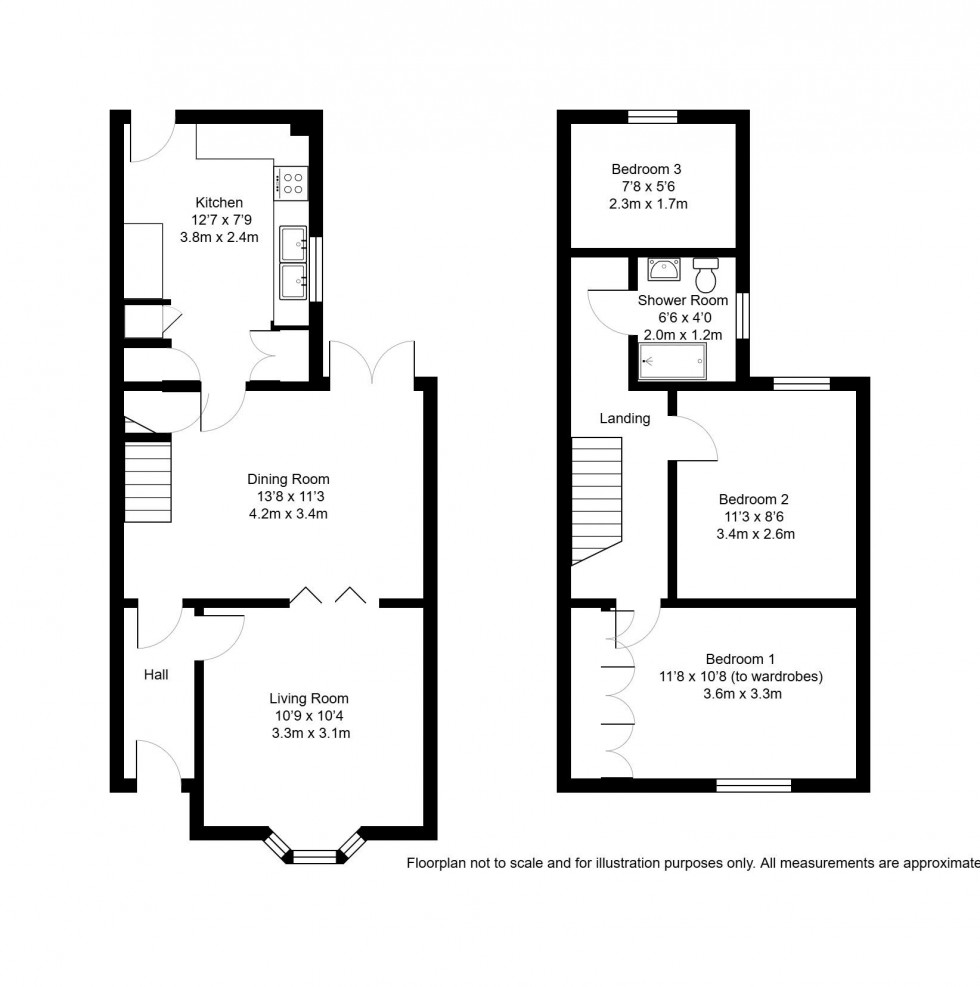
Waghorn and Company are proud to present to the market this charming bay fronted Victorian terraced house. Internally the property is bright and spacious with a double aspect living/dining room, a fully fitted kitchen with double butler sink and a selection of wall and base units, upstairs are two double bedrooms, an modern shower room and a smaller third bedroom which could be perfect for an office/study. Outside the easy to maintain rear garden offers the perfect place to relax in the warmer months. The location is fantastic, with the High Street, station and well regarding schools all on your doorstep.
Waghorn and Company are proud to present to the market this charming bay fronted Victorian terraced house. Internally the property is bright and spacious with a double aspect living/dining room, a fully fitted kitchen with double butler sink and a selection of wall and base units, upstairs are two double bedrooms, an modern shower room and a smaller third bedroom which could be perfect for an office/study. Outside the easy to maintain rear garden offers the perfect place to relax in the warmer months. The location is fantastic, with the High Street, station and well regarding schools all on your doorstep.
Charming bay fronted Victorian terraced house in sought after location
Well-appointed kitchen with wooden worktops and double butler sink
Easy to maintain rear garden with covered seating area
Walking distance to High Street, station and popular schools
An early viewing is highly recommended
EPC Rating D / Council Tax Band C - £2,,094.37 P.A