Sold Subject to Contract,
Guide Price £500,000 - £525,000
312
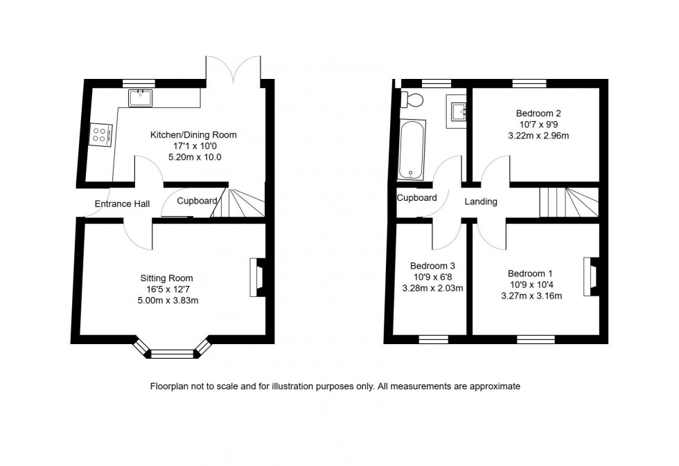
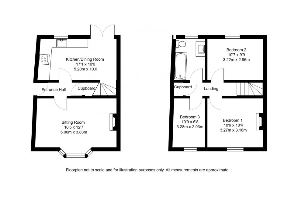
Guide Price £500,000 - £525,000 Offered to the market by Waghorn and Company, this wonderful and immaculately presented period property is ideally located just a short walk from Tonbridge mainline station, providing direct trains to London in under 40 minutes. The vibrant High Street and highly regarded local Schools are also close by. The property offers well-proportioned accommodation and benefits from a stunning, recently remodelled bathroom and kitchen/dining room. Early viewing is highly recommended to fully appreciate both the quality of the home and its excellent location.
Guide Price £500,000 - £525,000 Offered to the market by Waghorn and Company, this wonderful and immaculately presented period property is ideally located just a short walk from Tonbridge mainline station, providing direct trains to London in under 40 minutes. The vibrant High Street and highly regarded local Schools are also close by. The property offers well-proportioned accommodation and benefits from a stunning, recently remodelled bathroom and kitchen/dining room. Early viewing is highly recommended to fully appreciate both the quality of the home and its excellent location.
Immaculately presented period property within walking distance of Tonbridge mainline station (London in under 40 minutes)
Recently remodelled kitchen/dining room and stylish family bathroom
Three well-proportioned bedrooms with a bright bay-fronted sitting room
Attractive landscaped front & rear gardens
Close to the vibrant High Street and highly regarded local schools