A Beautifully Presented Period Home with Stunning River & Park Views. Waghorn & Company are delighted to offer to the market this charming and characterful period home, offering versatile accommodation arranged over three floors, including three good sized double bedrooms, ideally situated within the highly sought-after Barden area of Tonbridge. Perfectly positioned for Tonbridge mainline station, offering fast and frequent services to London in under 40 minutes, as well as the vibrant High Street and favoured local schools, this property combines lifestyle, convenience and character in equal measure. A particular standout feature of this home are the wonderful views to the front, overlooking the River Medway and Tonbridge Park, creating a truly special setting. The property has been beautifully maintained by the current owners and offers a wealth of original features including sash windows, fireplaces and stripped wood flooring, seamlessly combined with modern touches suited to family living.
New instruction, launching first on the Waghorn & Company website ahead of portal release
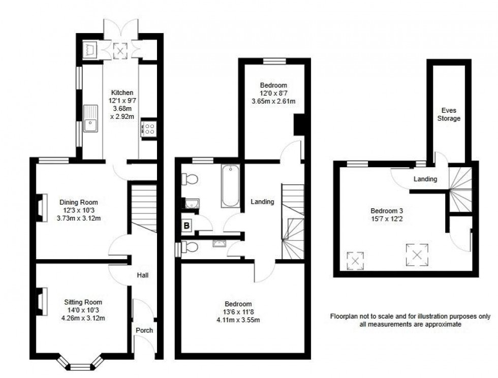
A Beautifully Presented Period Home with Stunning River & Park Views. Waghorn & Company are delighted to offer to the market this charming and characterful period home, offering versatile accommodation arranged over three floors, including three good sized double bedrooms, ideally situated within the highly sought-after Barden area of Tonbridge. Perfectly positioned for Tonbridge mainline station, offering fast and frequent services to London in under 40 minutes, as well as the vibrant High Street and favoured local schools, this property combines lifestyle, convenience and character in equal measure. A particular standout feature of this home are the wonderful views to the front, overlooking the River Medway and Tonbridge Park, creating a truly special setting. The property has been beautifully maintained by the current owners and offers a wealth of original features including sash windows, fireplaces and stripped wood flooring, seamlessly combined with modern touches suited to family living.
Charming period home in sought after Barden location
Stunning views to the front overlooking the River Medway and Tunbridge Park
Beautifully presented throughout with a wealth of original features including fireplaces and sash windows
Versatile accommodation arranged over three floors including three bedrooms and two reception rooms
Landscaped rear garden with summer house, ideal for home office or garden retreat