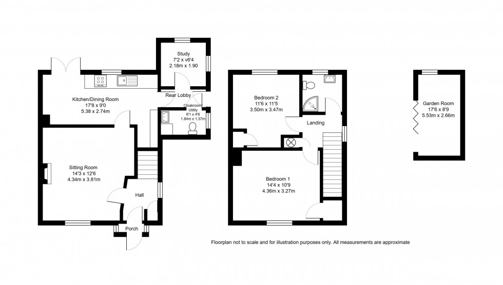
Guide Price £500,000 - £525,000 Waghorn & Company are delighted to offer to the market this well-positioned home occupying a pleasant corner plot overlooking the central green. The property offers well-proportioned accommodation arranged over two floors together with front and rear gardens, driveway parking and a versatile layout including a study, ground floor cloakroom/utility and a useful garden room/home office. The rear garden enjoys a good degree of privacy and provides an excellent space for relaxing and entertaining, with the added benefit of a detached garden room which would make an ideal home office, studio or hobby room, offering flexible additional space separate from the main house.
Guide Price £500,000 - £525,000 Waghorn & Company are delighted to offer to the market this well-positioned home occupying a pleasant corner plot overlooking the central green. The property offers well-proportioned accommodation arranged over two floors together with front and rear gardens, driveway parking and a versatile layout including a study, ground floor cloakroom/utility and a useful garden room/home office. The rear garden enjoys a good degree of privacy and provides an excellent space for relaxing and entertaining, with the added benefit of a detached garden room which would make an ideal home office, studio or hobby room, offering flexible additional space separate from the main house.
Pleasant corner plot overlooking the central green
Spacious kitchen / dining room with French doors to the garden
Garden room / home office with bifold doors
Study and ground floor cloakroom / utility room
Private rear garden with patio and driveway parking