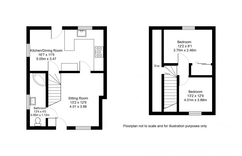
Guide Price £450,000 - £475,000 Waghorn & Company are delighted to present this wonderful end-of-terrace cottage, ideally located in a semi-rural setting close to the heart of Sundridge. This sought-after village lies within the Kent Downs Area of Outstanding Natural Beauty and offers a welcoming community atmosphere. The property combines charm and convenience, with features including a stylish kitchen, large rear garden, detached garage, and off-road parking. An early viewing is highly recommended.
Guide Price £450,000 - £475,000 Waghorn & Company are delighted to present this wonderful end-of-terrace cottage, ideally located in a semi-rural setting close to the heart of Sundridge. This sought-after village lies within the Kent Downs Area of Outstanding Natural Beauty and offers a welcoming community atmosphere. The property combines charm and convenience, with features including a stylish kitchen, large rear garden, detached garage, and off-road parking. An early viewing is highly recommended.
End-of-terrace cottage in a semi-rural location
Sought-after village location with amenities nearby