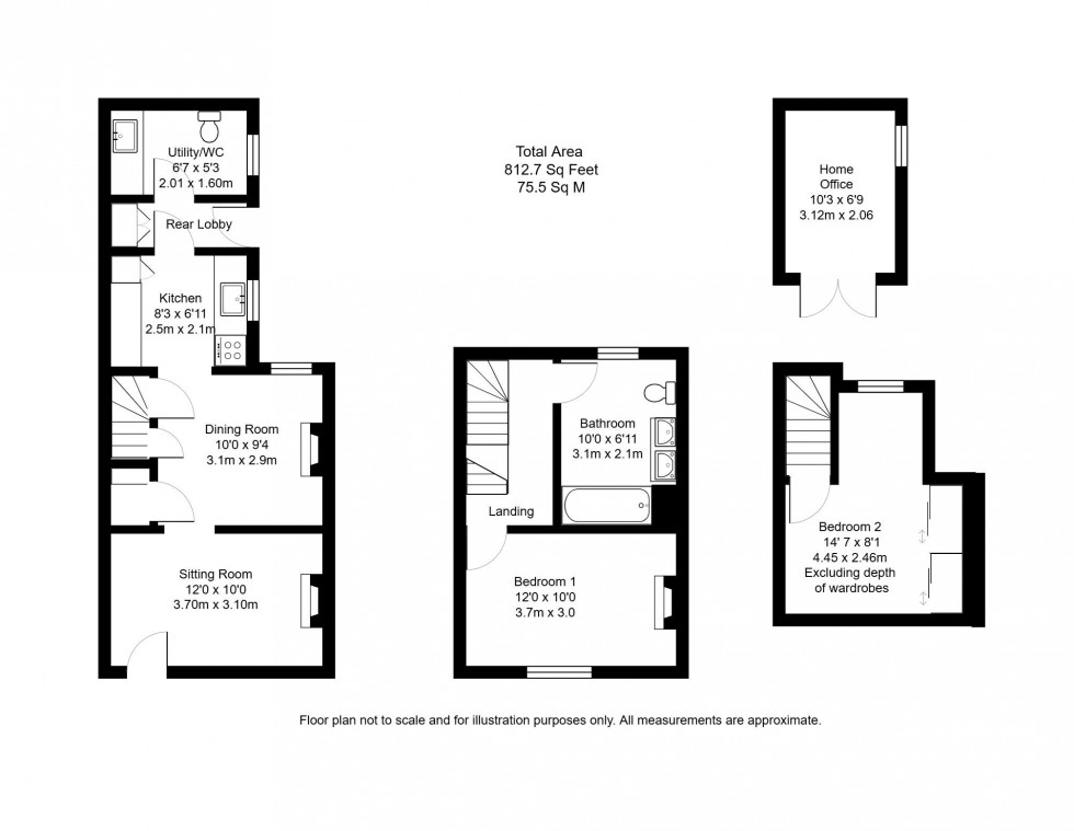
Waghorn & Company are proud to offer this most charming two double bedroom period property, ideally located just a short walk from Tonbridge mainline station, offering trains to London in under 40 minutes, along with favoured local schools and the vibrant High Street. Beautifully renovated throughout, the property combines character features with stylish modern living, creating a cosy yet practical home in a highly convenient location.
Guide Price £350,000 - £375,000 Waghorn & Company are proud to offer this most charming two double bedroom period property, ideally located just a short walk from Tonbridge mainline station, offering trains to London in under 40 minutes, along with favoured local schools and the vibrant High Street. Beautifully renovated throughout, the property combines character features with stylish modern living, creating a cosy yet practical home in a highly convenient location.
Two double bedrooms
Stylish garden home office
First-floor bathroom
Downstairs Utility room with WC
Period fireplaces and character features throughout