The property offers excellent potential as an ongoing, income-generating investment with established tenants already in situ. Alternatively, subject to the relevant consents, it would lend itself to significant improvement and reconfiguration, offering immense scope to extend and transform into a substantial and beautiful family home in a prime and convenient location.
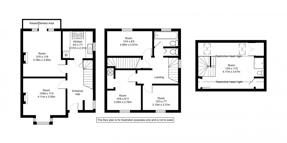
Currently arranged as an established six-bedroom HMO, the property comprises six letting rooms, a shared bathroom, separate WC and one bedroom benefiting from an en-suite facility. Externally there is a rear garden providing outdoor space for occupants. Situated within the popular Meadow Lawn area, the property is conveniently positioned close to the mainline station, vibrant High Street and favoured local schools, making it attractive to both investors and future owner-occupiers alike. Early viewing is highly recommended to appreciate the flexibility and potential this rare opportunity provides.
The property offers excellent potential as an ongoing, income-generating investment with established tenants already in situ. Alternatively, subject to the relevant consents, it would lend itself to significant improvement and reconfiguration, offering immense scope to extend and transform into a substantial and beautiful family home in a prime and convenient location.
Currently arranged as an established six-bedroom HMO, the property comprises six letting rooms, a shared bathroom, separate WC and one bedroom benefiting from an en-suite facility. Externally there is a rear garden providing outdoor space for occupants. Situated within the popular Meadow Lawn area, the property is conveniently positioned close to the mainline station, vibrant High Street and favoured local schools, making it attractive to both investors and future owner-occupiers alike. Early viewing is highly recommended to appreciate the flexibility and potential this rare opportunity provides.
Immense scope to improve, reconfigure or extend (subject to the relevant consents) and convert into a substantial family home
Popular Meadow Lawn location close to the mainline station, vibrant High Street and favoured local schools
Excellent opportunity to acquire a proven income-generating investment with established tenants already in situ
One Room with En-suite shower room
Offering strong ongoing yield potential with immediate rental return