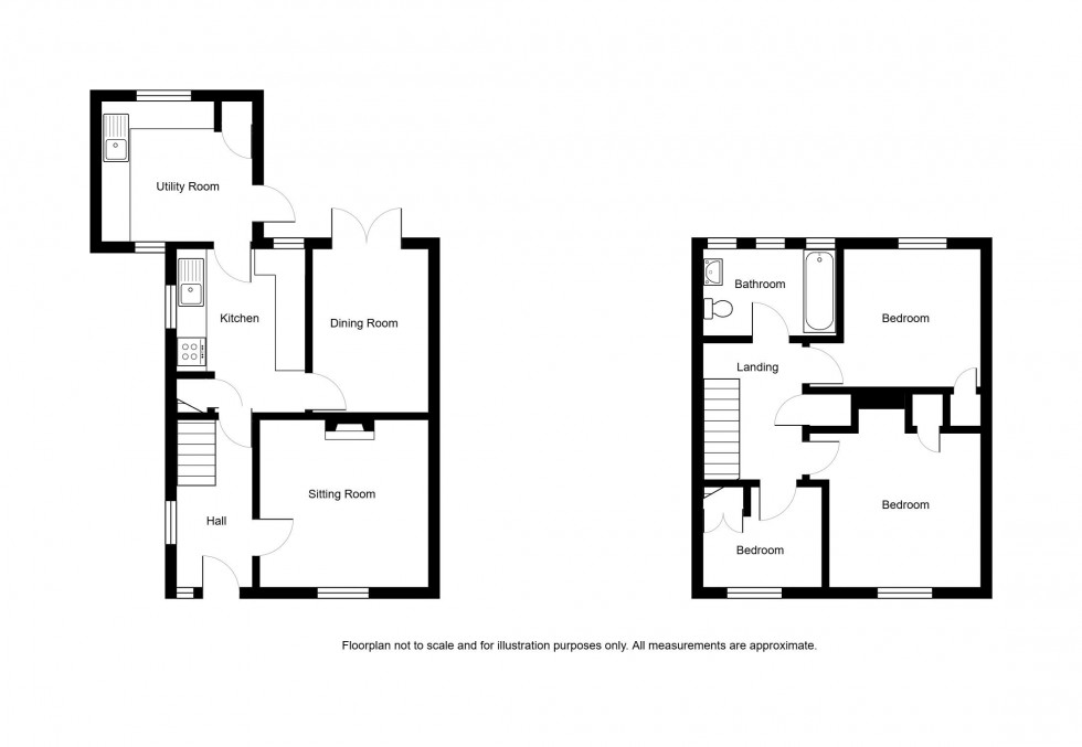
Waghorn & Company are pleased to offer this spacious three-bedroom semi-detached family home, ideally located just a short walk from the highly regarded Woodland Primary School. Occupying a generous corner plot, the property provides well-proportioned accommodation throughout with excellent potential to extend (STPP). Further benefits include a driveway for two cars and an en-bloc garage. Early viewing is highly recommended.
Waghorn & Company are pleased to offer this spacious three-bedroom semi-detached family home, ideally located just a short walk from the highly regarded Woodland Primary School. Occupying a generous corner plot, the property provides well-proportioned accommodation throughout with excellent potential to extend (STPP). Further benefits include a driveway for two cars and an en-bloc garage. Early viewing is highly recommended.