Sold Subject to Contract,
Offers in the Region Of £475,000
321
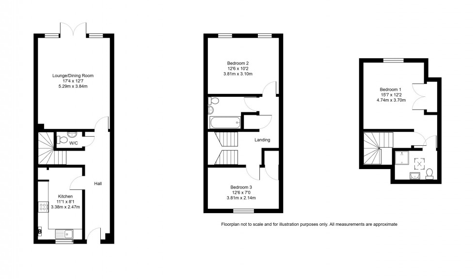
Tucked away on a private road within a sought-after cul-de-sac, this beautifully presented, chain-free semi-detached home offers easy, modern living in a superbly convenient location. The current owners particularly enjoy the pleasant walk into the town centre, making the most of the nearby amenities and lifestyle on offer. Inside, a sleek fitted kitchen and an open lounge/dining space create a great flow for everyday living and entertaining, with French doors opening onto a private, low-maintenance rear garden. A downstairs cloakroom adds everyday practicality. Upstairs, two bedrooms and a family bathroom are complemented by a superb top-floor principal suite with fitted wardrobes and an en-suite shower room, creating a peaceful retreat. Parking and excellent storage complete the picture. An early viewing is highly recommended to avoid disappointment.
Tucked away on a private road within a sought-after cul-de-sac, this beautifully presented, chain-free semi-detached home offers easy, modern living in a superbly convenient location. The current owners particularly enjoy the pleasant walk into the town centre, making the most of the nearby amenities and lifestyle on offer. Inside, a sleek fitted kitchen and an open lounge/dining space create a great flow for everyday living and entertaining, with French doors opening onto a private, low-maintenance rear garden. A downstairs cloakroom adds everyday practicality. Upstairs, two bedrooms and a family bathroom are complemented by a superb top-floor principal suite with fitted wardrobes and an en-suite shower room, creating a peaceful retreat. Parking and excellent storage complete the picture. An early viewing is highly recommended to avoid disappointment.
Beautifully presented modern three bedroom town house arranged over three floors
Stylish kitchen with quartz work surfaces and spacious lounge/dining room with French doors to garden
Principal bedroom suite occupying the top floor with en-suite shower room
Driveway parking for two vehicles and low maintenance rear garden
Conveniently located for local shops, bus routes and favoured schools