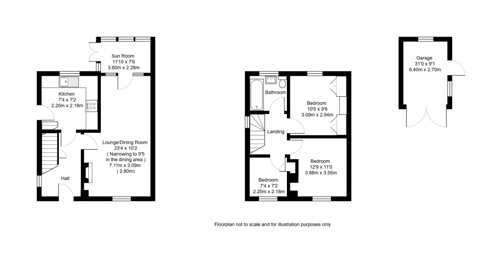
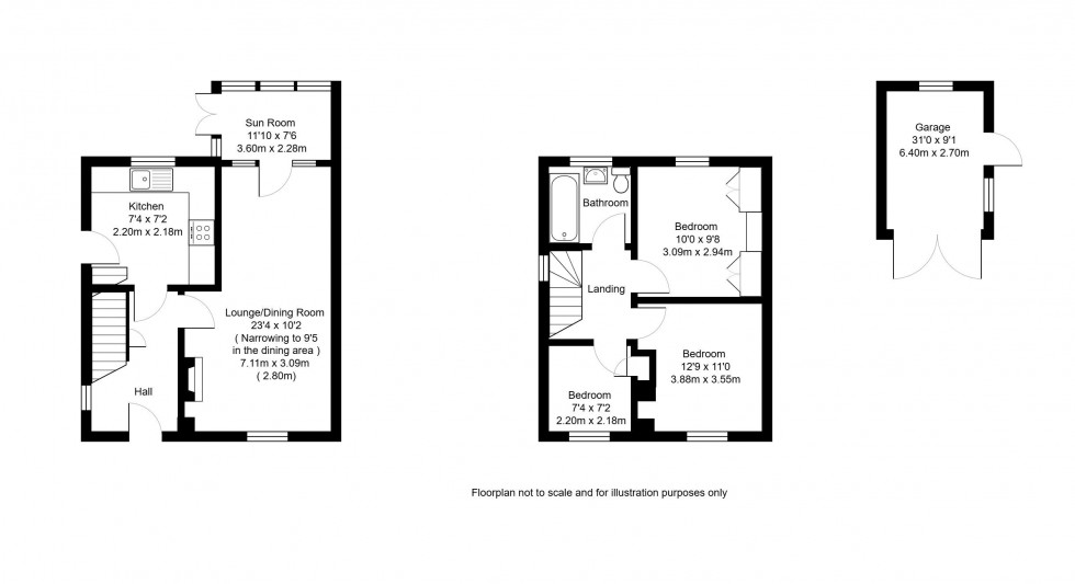
Guide Price £475,000 - £500,000 Well-presented three-bedroom semi-detached family home located in a much sought-after area, close to local shops, favoured schools, and excellent bus routes. A particular feature of this property is the large corner plot, a rare opportunity to acquire such a substantial piece of land offering excellent scope to extend (subject to planning). The property has already undergone some improvements but still offers plenty of potential for further enhancement, making it ideal for those looking to create a long-term family home. Situated in a popular residential area just opposite a park and with convenient bus routes into the town centre and Pembury Hospital, this property represents a fantastic opportunity in a highly desirable location.
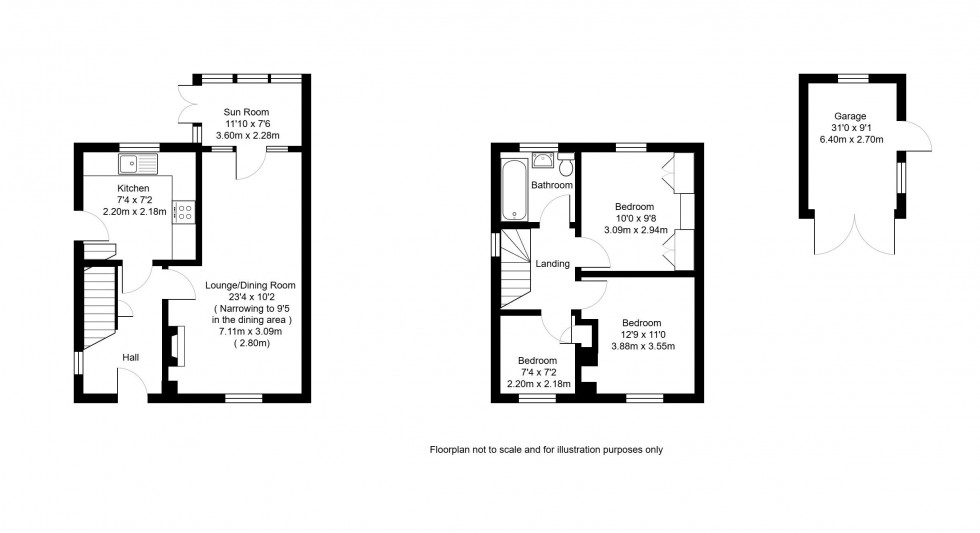
Guide Price £475,000 - £500,000 Well-presented three-bedroom semi-detached family home located in a much sought-after area, close to local shops, favoured schools, and excellent bus routes. A particular feature of this property is the large corner plot, a rare opportunity to acquire such a substantial piece of land offering excellent scope to extend (subject to planning). The property has already undergone some improvements but still offers plenty of potential for further enhancement, making it ideal for those looking to create a long-term family home. Situated in a popular residential area just opposite a park and with convenient bus routes into the town centre and Pembury Hospital, this property represents a fantastic opportunity in a highly desirable location.
Set on a generous corner plot offering considerable scope for extension (STPP