Upper Green Road, Tonbridge

For Sale, £1,400,000

7 5 3
An exceptional village home in an Area of Outstanding Natural Beauty, with charming gardens, a detached Oast house and direct access to The Green.

  • Prime Village Location being sold with no onward chain
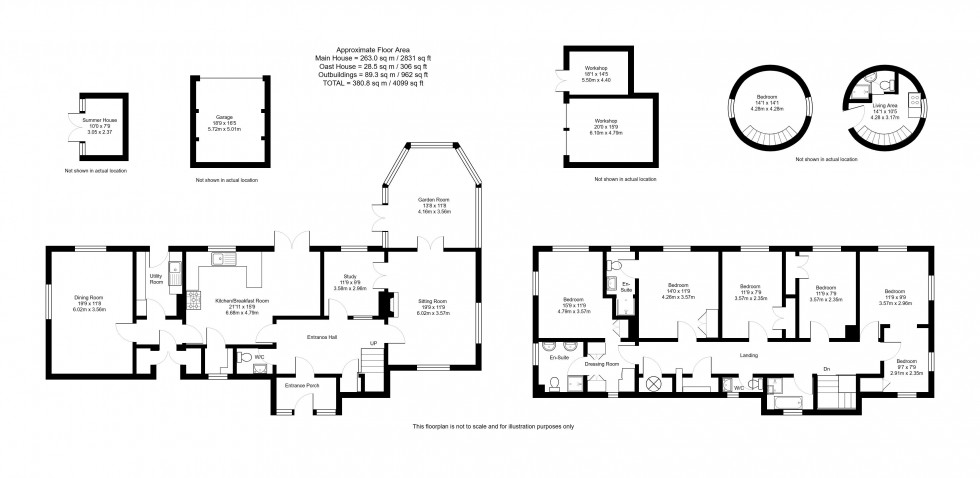
  • Spacious Family Home – Approx. 2,831 sq ft
  • Charming Detached Oast House
  • Glorious Mature Gardens
  • Excellent Schools & Transport Links
  • EPC Rating F / Council Tax Band • Council Tax: Main House – Band G £3895.63 P/A, Oast House – Band A £1558.25 P/A
Floorplan for Upper Green Road, Tonbridge
EPC Graph for Upper Green Road, Tonbridge

Get an instant online valuation

Find out how much your property is worth